棠湖泊林城别墅 329㎡ x 自然 静谧 治愈,三代同堂的现代居所
自然 静谧 治愈,三代同堂的现代居所
这是一个三代同堂的家,屋主夫妇、女儿以及常住的两位长辈,他们喜欢明亮、简洁的空间。 屋主之前的家里,拥有一些生活不便的困扰:厨房动线设计不合理,使用不方便;橱柜的面板不易于清洁;厨房水电、插孔少;衣帽间设计不合理,收纳不方便等等。 作为大家庭,对于新家他们有自己不同的分工。女主人对于家的颜值和预算进行把控。而奶奶则掌握着家中厨房、储物的决定权……
「光」之于空间,犹如「空气」之于生命。
光线是建筑空间的灵魂,它不仅可以满足基本的采光需求,照亮空间、消除黑暗,还能给人带来非常愉悦的视觉体验。所以,如何将自然光线巧妙地引入室内,是设计师必须考量的重点。
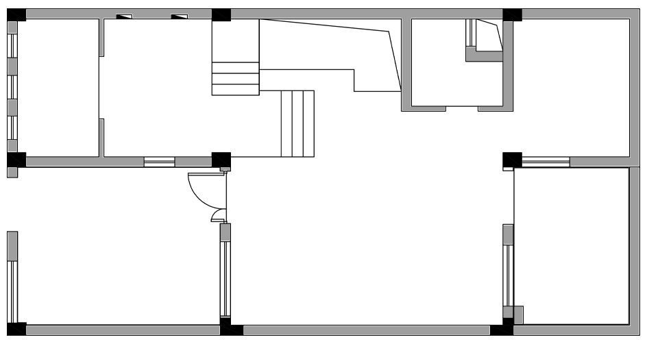
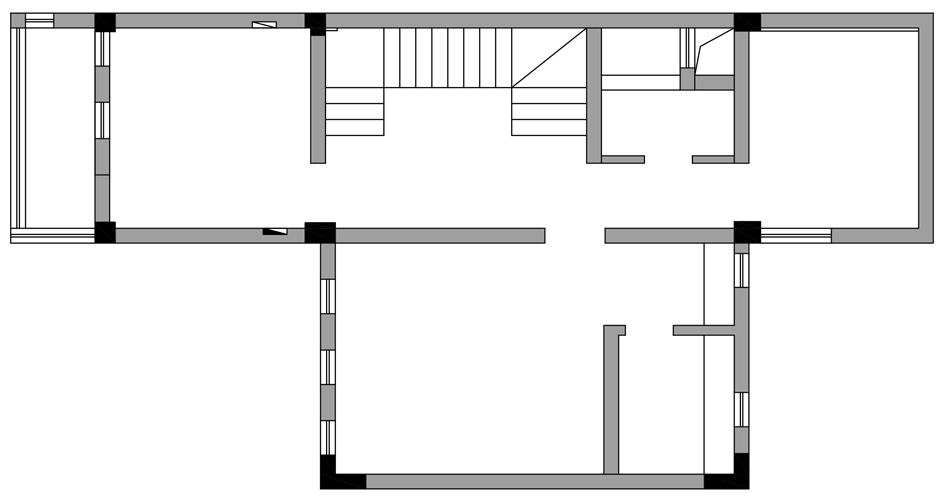
原始1楼虽然拥有不错的采光面积,但因为楼层矮和阳光照射的角度等因素,室内的采光并不充足。设计师将房屋前院扩入室内,建造贯穿整屋的天井。从2、3楼及顶面的搭建的窗口引入光线,即使在传统阴暗的1楼,同样能够获得更多光线。
入户楼梯下方新开的天窗,增加地下1楼采光,同时还能通风。一段光沿着楼梯自上而下,从明亮到暗淡、直至深沉,到了拐角的中庭又完全暴露。在这多维、复杂的光影中,空间有了多重效果。搭建后的天井,2、3楼楼梯处利用窗户+玻璃砖的形式,增加通透性的同时,又保证私密性。纵向的通透既强化了空间体量,又最大限度地将室“外”光线引入了室“内”,由此剔除了空间“里”和“外”的界定,空间的交互便由此产生。
光影与其交织,从平行光到天光,从冷光到暖光。光影流动的同时,既给予了空间特性,也给予了建筑生命。拾阶而上,步移景异。光影的流转,让空间开始呈现不同的质感,明与暗的交错,似乎也在诉说空间里的情感。
钢结构外框+原木色梯步,层叠递进地穿插在清水混凝土的空间中,其「混凝土」般粗犷的质感,在强调建筑「纯净性」的同时,又强化空间形态,赋予了「空间新的力量」。顶面天花采用阳光房的设计手法,尽可能保障空间的良好光线与通透性。阳光房顶面下方,安装仿木方通,与悬空的木色梯步呼应,也让人产生顶面与外景相通的错觉。
光斑在天窗周围的墙面流动,潋滟闪烁,整个建筑自内而外散发着光辉。在「时间」和「空间」维度上的自由感,来自超大的空间尺度。室内低调、谦逊又气氛轻松,完全以居家的舒适感作为考量,放弃形式上的惊人之举。室内的氛围与室外自然环境形成反差,自然光线与室内光线交织共存,饰面上新与旧的衔接,共存。
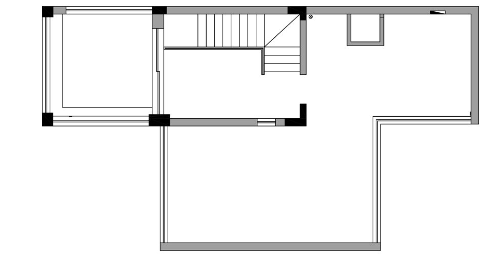
2楼空间以儿童房、老人房、客房为主。改造后的儿童房,拥有优异的尺度感,设计了寝居空间、衣帽间与卫生间。
色彩,汲取柔美的感染力,暖调温馨可爱,借用舒适布艺和萌趣元素,快速凝聚天真情感与浪漫情态。柔缓气质,由远至近,带人进入梦幻之境。空间承载着对于自然无限靠近的渴望,在清新安然的环境中,打造一个都市中的乌托邦。设计亦从完全的功能主义、理性主义转向表达丰富的情绪和感知。
3楼部分搭建空间,设定为主卧。映衬窗外的绿意,主卧将现代与原木结合。让窗外的景观,成为卧室的自然画卷。
































