成都后花园 327㎡ x 探索线条与空间的交融:关于人 家 爱意的故事
探索线条与空间的交融:关于人 家 爱意的故事
极简 干净 整洁 房屋是327㎡跃层,屋主对极简风格的偏好,以及对原木、干净、整洁的要求,将在这个家居环境中得到充分体现。整体色调以白色、灰色和原木为主,营造出宁静和温暖的氛围,同时少量彩色的点缀将为空间增添一抹亮丽的活力。 在空间规划上,我们将注重功能的设定,以满足一家人的日常生活需求。客厅、餐厅和厨房和老人房将位于一楼,形成一个开放且流畅的生活核心区。 二楼将设有一个宽敞的家庭活动室和各个卧室。家庭活动室将采用大量的白色和木质元素,以营造出轻松和舒适的氛围。卧室的设计将注重舒适性和实用性,同时每个卧室都将配备充足的收纳空间,以保持整个房屋的整洁和有序。
门厅
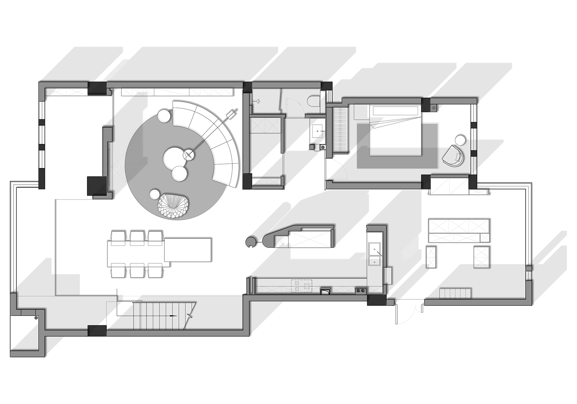
原始的房屋入户花园空间宽阔,但利用率较低,成为了家庭空间中的“冷区”。为了提高空间使用率和增加生活便利性,我们决定将入户花园的部分面积重新规划,满足其他空间的功能需求,同时优化门厅的使用需求。
在门厅正前方,我们设计了一组大型组合储物柜,不仅增加了门厅的储物空间,还形成了一条顺畅的洄游动线。这意味着家庭成员可以在门厅各个方位满足不同的储物收纳。
此外,门厅采用了下沉的落尘设计,这是一个细节上的体现,使回家的仪式感更加浓厚。每当家庭成员走进家门,他们会首先经过这个下沉式的落尘区,然后进入干净整洁的室内空间。这种设计不仅提高了清洁效率,还增强了家庭成员对灰尘的敏感度,使他们更加关注家庭环境的卫生。
这样的设计下,门厅不再是单一的入户路径,家庭成员前往其他空间也是可以选择的路径。他们会在门厅换鞋、挂外套、放置行李等物品。此外,门厅的储物柜还提供了充足的收纳空间,让家庭成员可以轻松整理和取用物品。
每当屋主回家,打开家门,步入这个经过精心设计的小空间,都能感受到一种独特的氛围。这种氛围不仅来源于视觉上的享受,比如不同隔断的材质、空间选用的材料、灯光设计带来的沉静安谧……更来自于内心的一种安定感,因为这里,是家的所在,是生活的港湾。
我们将“门厅”的概念引入1楼的卧室区域,木饰面墙、顶,隐形门与鱼骨拼地板巧妙地结合在一起,形成了一个半包围的“木盒”。使得1楼的卧室、客卫和储物间形成了一个相对独立但又可以分功能使用的“套房”格局。
原始的1楼卧室空间较为局促,为了增加房间的生活区域并直接获得采光,我们将门厅阳台划入了卧室。创造了一个更加实用、美观和舒适的居住环境。
随着顶面灯光的引导,来到门厅的尽头,一侧的斜面墙体造型让门厅与客厅的过渡宽敞开阔,给屋主在转换空间时带来一种豁然开朗的心情变化。
这种独特的墙体设计不仅增加了空间感,还让人在行走时感受到一种探索与发现的乐趣。门厅与客厅之间的过渡区域被巧妙地设计成一个令人眼前一亮的视觉焦点,为整个居住空间增添了一份空间动态感。
客厅
走进客厅,木色与白色的基调交织在一起,呈现出一种现代简洁的空间语言。线性设计元素与建筑思维相互融合,诠释了开放式布局的基础。
洞石、镜面不锈钢、定制柜体等等不同体块的相互穿插形成了丰富多维度的层次感,增加了空间的深度和维度。整个客厅空间在简洁与现代中流露出一种独特的魅力和活力,为屋主提供了一个温馨、宁静且充满艺术感的场所。
一深一浅,一虚一实,一动一静……这些都是宇宙万物自身的对立面,它们相互作用,交感而生,创造出无穷无尽的变化。这种变化,仿佛是一种魔力,唤起人们对日常生活中物质和欲望的反思。
顶面的两盏定制弧形吊灯,仿佛穿越了镜面不锈钢覆盖的梁体,简洁而富有张力的弧形灯条在空间中跳跃,形成了热情而又活泼的艺术表现力。下方围合而成的软装,与吊灯构建的圆弧两相呼应,形成了空间的戏剧张力,仿佛在喻示着什么,引发人们对空间和生活的无尽思考。
这是一种设计的哲学,一种对立的和谐,一种动态的平衡。在这种设计理念的引领下,空间变得生动而富有诗意,同时也引发了人们对生活和物质的深度反思。
休闲阳台
通过运用解构主义的设计理念,将原有的结构和元素进行分解和拆解,然后再通过新的组合方式将这些元素重新组合,从而创造出一种全新的形式和意义。
我们强调整个空间的趣味性和自在感。在这种自在感的序列中,窥见到一种关联与空隙之间的相互平衡。采用体块化的电视墙造型,空间得以通透且富有交互性,同时与地台搭配又能恰到好处地划分出空间的界线。巧妙增强了客厅与休闲阳台之间的空间层次感,让整个居住空间更加丰富多样。
电视墙的立体设计不仅提供了实用的摆放空间,还通过材质、颜色、光影等方面的搭配,创造出自然而刻意的视觉效果。它不仅是一个功能性的元素,还是一个极具艺术价值的装饰品。
餐厅
楼梯调整位置后,黑色渐变的楼梯贯穿整个餐厅,利用楼梯下部空置的空间,设计了一层层地台营造更多体块空间,同时透过窗户窥见窗外的景色,呈现出一种既分散又统一的奇妙感觉。多层次的立体结构之间相互作用,成为空间记忆的线索。
我们注重空间的真实感,因为这是视觉、触觉、精神、情感和记忆的共鸣。这种共鸣让我们感到身在其中,一切都是如此自然地存在和发生。我们寻求的是一种内在的连接,一种与空间、时间、自我和他人之间的和谐关系。
我们注重每一个细节,每一个元素,都是为了营造一个舒适、自然且富有情感共鸣的空间。我们希望每一个来访者都能够在这个空间中感受到一种独特的氛围和体验,一种能够触动内心深处的感动。
空间不仅仅是物质的存在,更是精神的映射。我们希望每一个空间都能够拥有自己的故事,能够成为人们记忆和情感的寄托。屋主不仅仅是房屋的居住者,更是空间的营造者和讲述者。
厨房
原始布局中的厨房过于局促,无法提供给屋主一家充足的烹饪空间。为了解决这个问题,我们将门厅进行压缩,从而获得了宽敞合理的厨房空间。
我们进行了细致的规划,以确保厨房空间的流畅性和实用性。其中,双动线设计是一个亮点。从走廊和餐厅都可以快速进入厨房,使屋主能够方便地进行操作。这种设计不仅提高了厨房的便利性,还增强了整个居住空间的交互性和流动性。
厨房朝门厅的方向,置入业主喜欢的玻璃砖元素,不仅可引入自然光线,还让回家的人与厨房内的人在空间里可以互动。折叠门能够完美隐藏在墙体中,让厨房的开放、封闭属性可根据屋主的需求进行变化。
休闲室&电竞室
楼梯区域的大面积挑空设计,不仅能够有效地弱化对空间的压迫感,还能将二楼的自然光线更多地引入室内,增加跨层空间内家人之间的互动性,促进家人之间的情感交流。
渐变玻璃扶手阵列在空间中蜿蜒曲折,不断延伸,形成一种牵引的暗线,引领着人们的探索过程。这种设计营造出神秘而富有仪式感的气氛。
沿着楼梯向上走,来到一个开放式的休闲室和电竞房空间。这个区域经过精心设计,以提供舒适、沉浸的氛围,让家人可以放松身心,享受休闲时光。在这里,屋主可以读书、品茶、聊天,或者两个人一起享受“开黑”的激情。
电竞室与休闲室之间特意进行区域分离,渐变玻璃的材质将空间划分,不仅能够提高电竞室的专注度和游戏体验,还能够为休闲室提供一个更加轻松和舒适的社交环境。
而渐变玻璃的运用则进一步强化了这种效果,它让两个区域之间保持着一定隔离,同时也让屋主之间拥有更多的视线互动。
主卧
在主卧设计中,我们将原始的两个卧室、楼梯间和卫生间组合起来,形成了一个功能划分清晰的大套间形式。这样的设计使得空间更加宽敞舒适,同时也提高了空间的使用效率。
主卧延续了原木+现代的整屋基调。深色的床屏设计简约利落,不仅提供了舒适的靠背角度,还为整个空间增添了一丝沉稳与大气。同时,包裹感的原木地面和柜体设计,让空间产生了一种聚散之美,给人一种淡淡的温馨感受。
内在之美在于愉悦,这是我们设计的核心理念。通过主卧的设计,我们希望为居住者营造出一个舒适、自然、和谐且富有情感交流的居住环境。在这样的空间中,人们可以放下身心压力,享受宁静与放松的时光,与家人朋友进行情感交流,共同创造美好的回忆。
阳台打造了阅读、观景的休闲空间,让屋主得以放松身心,尽享惬意时光。在这里,他们可以欣赏到美丽的景色,沉浸在自然的怀抱中。同时,明星同款躺椅和阅读灯光设计,让屋主在阅读、休息时都能感受到无比的舒适与便利。
在主卧寝居空间的另一侧,我们规划了主卫和衣帽间功能。主卫采用了三分离的设计布局,使得洗漱、如厕和淋浴三大区域相互独立,不仅提高了空间的使用效率,还满足了屋主日常生活的便利需求,避免了使用上的冲突。
卫生间使用洞石作为隔断,不仅增加了空间感,还成为主卧入户后的一道独特风景。洞石本身的天然石材斑点,一旁木质柱体的纹路给人一种自然、原始的感觉,仿佛它是一个有机的生命体,与人类共同构成了一个和谐共存的居住空间。
强调了自然与人工的和谐统一,以及材料本身的生命力和独特性。洞石作为一种有生命的材料,不仅具有实用功能,还为空间增添了独特的氛围和情感。
通过空间设计语言的营造,让卫生间不再是一个孤立的空间,而是成为整个居住空间的一部分,与人类的生活息息相关。不仅体现了对材料的尊重和运用,也体现了对生活和环境的关注和思考。
在空间规划中,我们将衣帽间设定为独立的功能区域,以满足屋主对于收纳和整理衣物的需求。这个区域不仅具备实用性,同时也承载着空间的艺术性。
在设计中,我们注重对衣帽间的细节打造。镜面不锈钢的运用,不仅在视觉上扩大了空间感,还巧妙地掩盖了梁柱,使得整个空间更加流畅、自然。这种材质的冷艳与现代感,与周围的环境形成了鲜明的对比,彰显出原始建筑媒体的独特魅力。
此外,我们还通过合理的布局和收纳规划,使得衣帽间成为了一个有序且具有艺术美感的空间。各种尺寸的收纳柜设计,使得不同类型的衣物和配件都有了合适的存放位置,既方便了生活,又使空间显得整洁、美观。将衣帽间打造成一个富有美感且实用的空间,为生活增添一份优雅与格调。
卫生间
二楼的次卫生间进行了干湿分离的设计,通过洞石和玻璃砖的组合,使空间呈现出自然质朴的肌理感。这种材质的选择和运用,不仅增加了空间的美感和舒适度,还实现了将户外的光线引入洗漱区,使得不同空间之间产生了互动和联系。














































