建发天府养云 136㎡ x 原木极简精装改造,高级温润美得一塌糊涂
治愈系配色 + 开放式布局,越住越爱
浅色原木搭奶油色艺术漆,地面铺奶白水泥瓷砖,推开门就被温馨氛围 “拥抱”,忙完一天回到家,疲惫感瞬间清零。电视墙藏着巧思,局部用米色系洞石点缀,天然纹理与空间色调相融,既保持整体和谐,又悄悄叠加艺术氛围,细看处处是层次。 采光布局更惊艳,无主灯设计让空间简洁大方,阳台纳入客厅后,罗马帘将阳光筛成温柔光晕,均匀洒在每个角落。开放式客餐厅一体,公共区域彻底敞亮,日常活动、亲友相聚都超自在。
















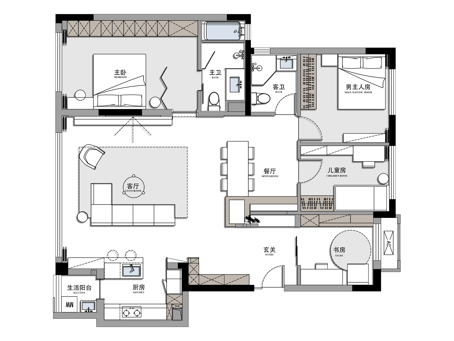
空间规划
SPATIAL PEANNING

