三利宅院 441 ㎡ x 推窗见四季,别墅通透感把亲子时光滤成自然长诗
推窗见四季 · 院墅中的时光纹路与绿意呼吸
暮色中,写字楼玻璃幕墙割裂夕阳,折射出都市人疲惫的剪影。我们困在霓虹牢笼里,连呼吸都沾满焦虑。心底始终渴望推开一扇窗,让山风裹着野蔷薇香拂面,让春樱冬雪在眼前轮转成诗。 当 “成都拾光悠然设计” 团队接过这份设计委托时,我们触摸到了藏在需求背后滚烫的生活愿景。 这份复杂而动人的期待,指引着我们在设计的秘境中,寻找复古与现代、人文与自然完美交融的密钥,誓要将这座院墅,打磨成安放身心的理想家园。
1F·门厅
门厅,作为家的第一印象,承载着欢迎与期待的情感。此次设计,我们特别注重光与空间的互动,采用了独特的玻璃顶设计,将自然的馈赠——光,巧妙地引入室内。每当阳光洒落,门厅便沐浴在温暖而明亮的光辉之中,仿佛被赋予了生命与活力。
针对低楼层可能带来的压迫感问题,我们也进行了精心考量。通过玻璃顶的透明质感与光线的巧妙运用,不仅成功弱化了这种压迫感,更让整个门厅空间显得通透明亮,宛如一个舒适的光之舞台。置身其中,您能感受到每一缕光线带来的愉悦与安详,让归家的每一步都充满温馨与期待。



1F·客厅
在空间设计里,色彩是无声的情绪译者。
墙面的天然肌理与低饱和度,无声勾勒出宁静的空间底色。墙面选了接近奶霜的浅米色,不是直白的白,而是像清晨七八点的阳光,被纱帘滤过、晕开,轻轻覆在空间里。
开放式布局打破边界,客厅与走廊、楼梯间自然衔接,光线顺着门厅流淌,风也能在这里拐个弯。没有生硬的隔断,空间像被轻轻「打开」,人在其中走,像走在连贯的生活剧场里,每一步都踩着自在。




黑色的玄关柜,表面有手工雕刻的肌理,摸上去是凹凸的故事感。它像个沉默的生活容器,盛着陶罐里的枝桠、旧碗里的时光,和书脊上的温度,每一件器物都在说「我和这个家,一起生长」。


这种低饱和的温柔,让深色的壁炉石材、墨绿单人沙发,都成了画龙点睛的情绪锚点,冲突里藏着细腻平衡。
没有刻意划分功能区,沙发、单人椅、地毯自然围合出交流场所。
定制的开放书架,层板深度、间距经过调试,书册能随意斜放,陶艺品、中古时钟也有了容身之所。



1F·阳台
我们把窗变成画框、把空间化作容器,让微风、光影、鸟鸣,都成了家的点缀。视线顺着门洞延伸,能看见远处的窗、窗外的树。
定制的开放书架藏着生活碎片,老陶艺品、旧书籍,和墙上的画默默对话,每一件器物都在说「我属于这里」。



1F·餐厅
在烟火日常里,餐厅该是能让人慢下来的容器。克制的色彩、温润的器物,把用餐时光,晕染成一幅关于「静与暖」的生活画。
浅米色墙面,静静托住那幅金色屏风。日光漫进来时,金箔的光泽会轻轻晃,和浅墙的温柔碰撞,在空间里揉出一层暖金滤镜,连空气都沾了几分静谧。



1F·厨房
餐厅与厨房以开放格局相连,大面的格子窗,像把户外的花园「裱」成了动态画。
浅米色墙面接住窗外的绿意,让下厨、用餐,都成了和自然对话的过程,没有生硬的边界,只有生活的流畅呼吸。
厨房的大理石台面,纹理里藏着山水的影子。深色木柜带着质朴的温度,把锅碗瓢盆的烟火,都衬得更有生活质感。
黄铜壁灯的光落下来,给料理台镀上一层暖黄,连切菜、备餐,都成了与器物对话的温柔。



1F·书房
浅米色墙面像层轻柔的茧,把书房与邻室的游乐区,温柔裹进同一个空间。L 型书桌接住窗外的光,成了大人与思绪对话的空间。
窗下的矮柜与游乐区相连,积木、绘本、涂鸦本,是孩子造梦的素材库,一窗之隔,两个世界,却共享同一片温柔日光。

2F·次卫

3F·主卧
推开三楼主卧的门,像把度假天堂整个搬回了家。窗是画框,装着树梢的绿、天空的蓝。
空间是容器,盛着晨起的光、睡前的暖,每一寸都在说把日子过成度假。
把主卧做成酒店套房的模样,却比酒店多了「家的温度」。寝居区的宽敞、步入式衣帽间的实用、梳妆区的精致、卫浴区的舒适,还有能晒太阳的休闲阳台,把度假的松弛,融进每天的日常。

浅米色的墙,是最温柔的「睡眠底色」,不张扬,却默默接住所有疲惫。软乎乎的床品、毛茸茸的单人椅,是触得到的温柔。

床尾电视墙背后是大面积的衣帽间,没有刻意的华丽,却用温润的木作、合理的分区,把四季衣物与被褥,都「收」成生活的诗意。
柜体用隐形的分区,接住四季的衣物:春日的薄衫、冬日的厚被。被褥收纳区藏在深处,拿取时像翻开季节的篇章,把整理衣物,变成触摸节气的温柔仪式。


3F·主卫
天窗漏下的光、石材流淌的纹,把洗漱、泡澡,都变成与自己独处的治愈时刻。
浅米色墙面接住天窗的光,在长条形空间里,织出明暗交错的网。尽头的淋浴区、手边的洗漱台,被光轻轻划分,却又连成一片呼吸的场所,让每一次踏入,都像被宁静包围。


洗手台的青玉石材,纹理像被封存的溪流与山峦,每一道波纹里,都藏着自然的呼吸。晨起接水时,光影落在石面上,会把山水的「静」,轻轻晃进生活。夜晚刷牙时,石纹在暖光里流淌,又把自然的「柔」,悄悄敷在脸上。

淋浴区的大理石,把自然的流动感,铺成触得到的背景。这些石材不只是装饰,让洗漱时的水花、泡澡时的热气,都沾了几分山林的松弛。

空间规划
SPATIAL PEANNING
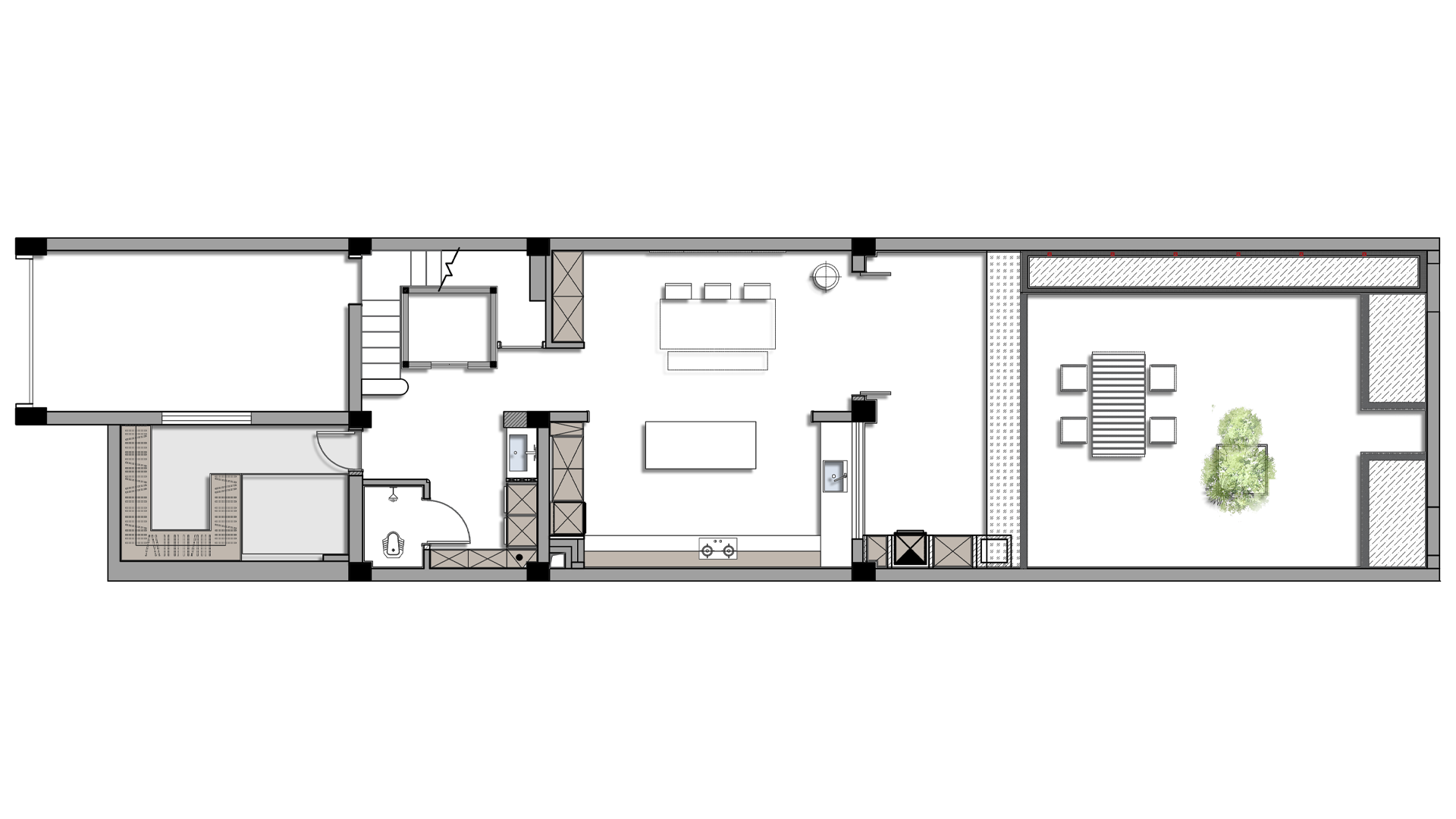
原始结构分析
Original structural analysis
① 采光不足:一楼整体与其他楼层部分空间,采光面相对较少,导致室内光线较为昏暗,影响居住的舒适度和空间感。
② 入户鸡肋:入户花园设计较为鸡肋,空间利用率低,既没有充分发挥其作为过渡空间的功能,也难以满足家庭的多样化使用需求。
③ 部分区域面积狭小 :一些房间的面积相对较小,导致空间局促,使用起来不够舒适方便。
④ 空间利用不合理:部分房间的形状不规则或者尺寸较小,可能导致这些空间难以有效利用,比如无法摆放合适的家具或者进行正常的活动,造成了空间的浪费。




平面布局规划
Layout Planning
① 采光优化:将入户花园以阳光棚的形式进行封闭改造,通过采用透光性能良好的阳光板等材料,有效增加一楼的采光条件,使自然光线能够充分洒入室内。在平面布局规划时,充分考虑窗户的位置和方向,尽量使各个房间都能获得充足的自然采光和良好的通风条件。主卫卫生间增加玻璃墙与天窗,让空间映入自然采光条件。
② 入户功能增加:对入户花园进行重新规划,将其打造为封闭的门厅。在门厅内合理设置鞋柜、换鞋凳、挂钩等功能性家具,实现入户收纳、人员分流等实用功能。
③ 交通流线优化 :在原始楼梯交通基础上,进一步梳理各房间与公共区域之间的交通动线。确保各个空间之间的通行顺畅,避免出现过多的迂回和交叉,提高空间的使用效率。
④ 明确功能分区:将空间划分为不同的功能区域,如左侧区域可能是起居空间,包含一个宽敞的客厅和餐厅,并且与厨房通过合理的通道相连,方便用餐和烹饪的操作。右上角设置了卧室等私人空间,保证了居住的私密性。



