绿水康城 181㎡ x 自然质感织就的治愈系居所,让生活在温润中舒展
自然质感织就的治愈系居所,让生活在温润中舒展
自然质朴的侘寂美学,以 “去繁就简,归真致柔” 为创作核心,雕琢出一方治愈灵魂的栖居场域。这套空间深度践行自然系现代简约风格,将原木的柔和肌理、艺术颗粒墙面的朴素质感,与石材的沉静底蕴层层交织。 在低饱和暖调的晕染下,营造出如日式茶室般宁静、如山野居所般松弛的氛围。从家具的温润线条,到墙面的天然肌理,每一处细节都在传递 “与自然共生” 的设计哲思,让居者于都市方寸间,亦能拥抱山野般的从容,让生活的节奏在质朴质感里缓缓舒展。













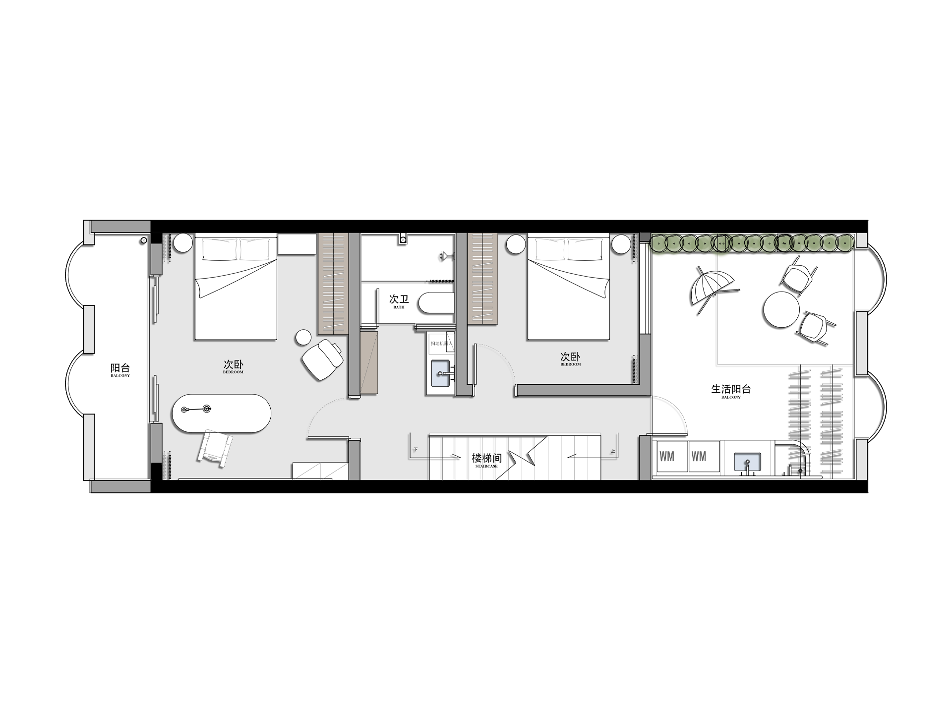
空间规划
SPATIAL PEANNING







