万科知园 135㎡ x 从被「AI参考」开始,我们落地了一个被“偷走”的家
一个敢设计,一个敢接受:我们被同行“AI”的家,90%还原了
如果设计是一场冒险,我们的家无疑是一次驶向色彩与趣味深处的大胆航行。但比天马行空的想法更珍贵的,是把想象稳稳安放进120平米现实框景里的决心。 这个故事的开端有些特别。我家尚未动工的效果图,就已在某平台里小范围流传,甚至被一些同行拿去,尝试用AI生成类似的“概念”。但当绚丽的色彩与几何在虚拟中碰撞时,我们一家三口,正与设计师@朵朵 一起,面对着施工图上最现实的尺寸、材料和工艺。 一场关于“孟菲斯”风格的大胆实验,就此启幕。我负责硬核的施工落地与质量把控,妻子负责守护她心心念念的视觉与趣味,而设计师朵朵与执行师,则成为了那个最关键的“翻译官”与“合伙人”,将那个几乎被当作「概念素材」的灵感,一砖一瓦,还原为我们触手可及的日常。
玄关
多巴胺配色的玄关柜以一抹亮色迎接归人。独特的弧形落尘区,不只是换鞋的地方,更是我妻子坚持要的“仪式感”——在这里卸下疲惫,以最好的状态面对家人。一旁的次卫囊括其中,动线合理。

客厅
打通的布局、圆形的窗洞与灵动的隔断,让光线与空气自由穿梭。阳光最好的沙发区,是我们全家最爱待的地方。妻子喜欢在这里看书,我则中意那把休闲椅。这些来自不同风格的家具,在这个空间里和谐共生。
为了保持通透感,设计师用了趣味十足的圆形窗和半通透的双开门。这圆窗像空间的眼睛,而半通透的双开门则巧妙平衡了开阔与隐私。当一家人各自在空间活动时,既能相互感知,又互不打扰。
再把目光投向阳台。原本功能性强烈的家政阳台,被一道圆润的弧形墙体温柔地包裹其后。这面墙不仅巧妙隐藏了晾晒收纳的生活痕迹,更让客厅的视觉画面保持纯净与完整,将艺术感与实用性融为一体。当一家人在此各自活动时,既能感受到彼此的存在,又享有互不打扰的安宁。





餐厅
餐厅与客厅相连,复古地板通铺,视觉统一。中古小圆桌是妻子淘来的宝贝,烛光与果香在这里交织,是她对生活细腻的表达。
色彩的层次在这里很丰富。窗外的自然绿、窗边的静谧蓝、吊灯的热情红……诸多色彩相互交织,达成了微妙的和谐。而对我而言,最实用的莫过于那个被改造的飘窗餐边柜,成了厨房的功能延伸,非常实用。



厨房
如果说餐厅是生活的舞台,那厨房就是舞台后方那个活力四射的创作间。这里,柯布西耶色卡上最浓烈的红与蓝,终于迎来了它们最奔放的碰撞。整个空间以暖白为底,那一抹克莱因蓝与炽热正红,如同被灵感泼洒,在规整的橱柜与墙面上构建出充满张力的秩序。
多样的几何形态在这里尽情游戏。经典的方格瓷砖、弧形的门洞线条,与客厅的圆形窗洞遥相呼应。最让人会心一笑的,是那扇包裹着黑白手工马赛克的门框——它让一扇普通的门变成了精致的立体画,每次推开,都像触碰一件艺术品。橱柜与餐厅的柜体采用相同材质,视觉上的统一让餐厨空间浑然一体。
对我妻子来说,这里是她大显身手的领地。她说,在这样明媚又充满设计感的空间里备餐,连油烟味都仿佛带着艺术的气息。

书房
这是我们家的“核心装置”。因为我要玩游戏,孩子要学习,妻子想要一个能互动也能独立的书房。于是,设计师用联动折叠门,创造了两种空间形态。
打开时,是一个开阔的共享空间;关闭时,是两个独立的静谧天地。定制的大书桌中间用折叠窗扇划分,能灵活调整。
考虑到孩子身高,一间书房做了矮柜,另一间则做了“矮柜+黑板+软木板”的组合,方便我辅导功课时记录生活点滴。两边的飘窗都做了软榻,累时可以小憩片刻。







主卧
空间情绪从公共区的明快,过渡到这里的私密宁静。睡眠区以不同层次的绿色为主,柚木材质带来温润感。墙面用细窄线条做不对称分层,让简单的墙面也有了立体节奏。





主卫
主卫选用了蓝色小方砖来铺就墙面和地面,与红色装饰条激烈碰撞,充满戏剧性,又在其他色彩的调和下回归和谐。双台盆的设计,是我和妻子早晨洗漱时不“打架”的温柔,就连洗漱镜也是采用厨房门框同款的马赛克制作边框,细节中有带我们好玩的感觉。


儿童房
儿童房的设计,是一场温柔的预谋。我们不愿用过于直白的卡通符号填满它,而是用色彩与几何,为孩子的想象力留白。顶面那片蓝白相间的方格,像一小片被裁剪下来的晴朗天空。这处工艺细节最能体现施工的“较真”——分色的边缘必须笔直清晰,不能有丝毫晕染,是师傅靠着分色胶带和极大的耐心,一点点“画”出来的。
墙面是大面积的留白米色,一盏蓝绿撞色的圆形壁灯,恰好与衣柜的圆形绿色把手、顶面的蓝色线条悄悄对话,让童趣在细节中流动,而非喧闹。绒面的蓝色弧形床头柔软地包裹着梦境,云朵抱枕仿佛触手可及。我们想象着,未来孩子会在这里阅读、玩耍,这个房间的色彩会默默陪伴他,编织出最初的美感记忆。


公卫
公卫,是归家动线上一个意外的宁静逗号。设计师将它从纯粹的功能空间中解放出来,赋予了情绪转换的意义。每次从外面回来,在这里洗手时,目光会自然地落在那些蓝、白、黑色块拼接的墙砖上——它们以某种精妙的韵律排列着,像一首简约的视觉诗。
温暖朦胧的灯光从上方洒下,笼罩着这个小小的、干燥洁净的空间。水流声、瓷砖清凉的触感,加上眼前宁静而有趣的色彩构图,能让人迅速地松弛下来。它不像一个卫生间,更像一个仪式性的过渡站,洗去尘土,也滤掉心上的浮尘,让人真正地“回到”家中。

空间规划
SPATIAL PEANNING
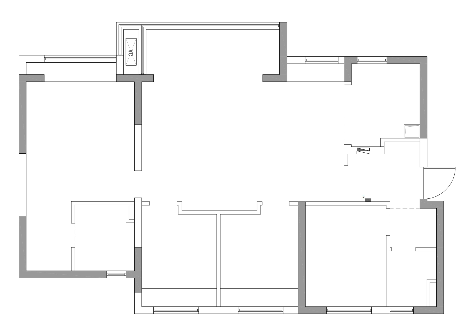
原始结构分析
Original structural analysis
① 客餐厅一体的布局设计:这一结构使得公区的采光较为通透。光线可以在客餐厅之间自由穿梭,让整个公共区域明亮开阔,营造出一种宽敞的视觉感受;
② 次卧门洞的位置在洗漱间:这样的布局带来了进出不便的问题。每次进出次卧都需要经过洗漱间,在日常生活中可能会造成一些困扰;
③ 房间的数量虽然充足,但每间的面积都比较小:这对空间的合理规划提出了挑战,需要精心设计才能满足一家三口的生活需求,确保每个空间既实用又舒适。

平面布局规划
Layout Planning
① 玄关仪式感:玄关设计落尘区,并于洗手池紧邻,让回家的仪式感更充足;
② 飘窗改造:餐厅原本积累的飘窗改为餐边柜,增加空间的使用率,并且扩展了厨用区域,减少厨房压力;
③ 双书房布局:两间房间改为相互联通有能独立的双书房,满足屋主使用萃取的同时,增加休息区域,并且采用的玻璃移门,让整个公区的视野更为开阔;
④ 优化动线:改变侧卧出入方向,房次卧的使用与活动更为方便。

对话业主
TALK TO THE HOMEOWNER
Q1:在什么样的契机之下找到了拾光悠然呢?
A1:是我媳妇在小红书上看到了朵朵之前的设计案例,然后找到的你们公司,当时与前端商务沟通了装修风格后,就安排了朵朵,刚好我媳妇收藏的案例就是朵朵刚发布的,特别巧。
Q2:作为全包项目,整个过程中有没有觉得比较满意的地方?
A2:我平时来工地的次数很少,但每次来都挺放心的,能看出来工人是认认真真在做事的。而且施工中有什么问题,你们都会及时反馈、征求我的意见,大家交流沟通也比较多。
对比过其他装修公司,你们的差别很明显,施工质量、材料的堆放整齐度、现场每一步工序的整洁度、材料垃圾的堆放,还有工序流程这些,都做得挺不错的,这也是我比较看重的点。
Q3:装修过程中有没有出现过不太顺利、返工或者其他问题?
A3:返工、需要整改的情况,我觉得所有工地大概率都会有,我自己也是做土建类相关的,这种修修补补的小事情很正常,主要还是看最后的结果和效果。而且出现问题后,你们都会及时安排时间、对接沟通,然后做调整和解决,这一点做得挺好的。我们对工期要求不高,没有催进度,还跟执行师说不用着急,慢慢弄,把东西做好、保质保量就行。
Q4:你和施工执行师沟通比较多,对他有什么评价?如果 100 分制,会打多少分?
A4:理性打分的话,给柠檬打 95 分。要说 100 分达不到,是感觉上还差一点,但具体说哪里不好也说不出来;要说他做得差,其实一点都不差。他做事很踏实,是那种闷着头干事的人,沟通层面也没什么大问题,扣 5 分就是留一点成长空间。
Q5:那对设计师做一个具象评价,同样 100 分制打个分?
A5:本来还不好打分,因为是我媳妇选的设计师,但抛开设计层面,从做事效率、问题反馈这些方面来说,朵朵没什么问题,我媳妇对她也很认可,朵朵是个积极性很强的人,也打 95 分。而且从设计本身来说,色彩、造型都做得不错,设计还原度也很高,你们这个效果图现在都被很多同行拿去做 AI 参考了,这种设计其实落地难度特别大,需要团队和客户一起配合,所以 95 分完全没毛病,也留 5 分成长空间。