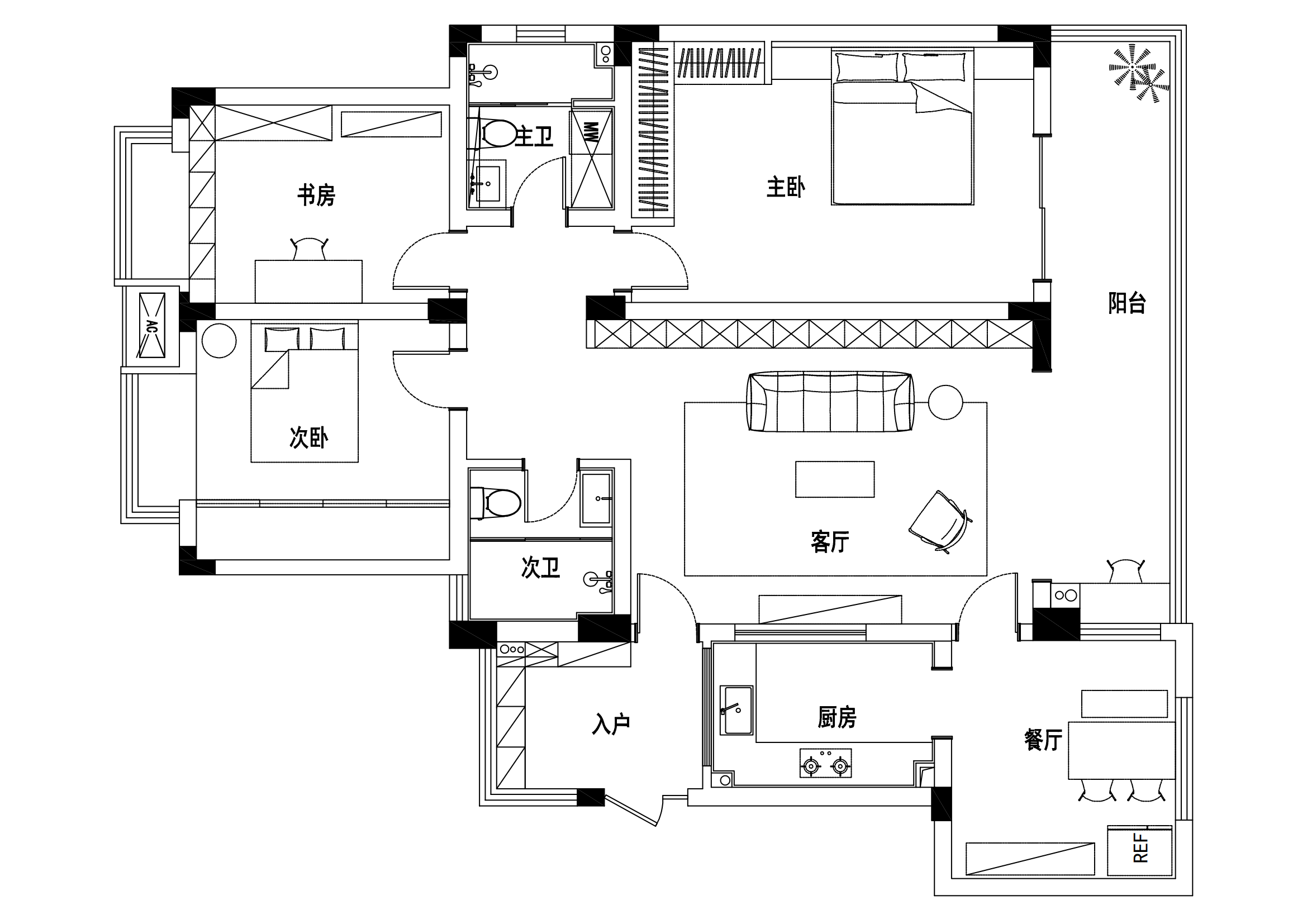
蜀郡 147㎡ x 慵懒木屋,珍藏私物 俩人爱好疯长的“小宇宙”
慵懒木屋,珍藏私物 俩人爱好疯长的“小宇宙”
她是文科生,经常有些可爱的念念叨叨,喜欢收集各种各样的小玩意儿,热爱音乐,从心水的乐队聊到民谣的发展史······ 在女主人眼中,她的先生是个典型的理科生,颇有一丝不苟的严谨范儿,喜欢不刻意设计的美,喜欢温馨的氛围。 在装修过程中,两个人的想法常常会“打架”:她喜欢“原始质感的东西”,他“不要家里太原始”;她喜欢凌乱美感,他只要“干净的台面”;她需要开窗让家通透,他希望保留一面大白墙······ 这些看似啼笑皆非的拉扯,实际上帮助两人更加清楚自己的需求。家的模样也在一次次的讨论下逐渐清晰,从构想进化成实物。家与人的关系就像朋友,总是越聊越熟。 - 设计师语嫣:“家不是一成不变的建筑,而是随着人一起成长的,不是一个简简单单的、用风格就能概括或堆砌几件网红单品就能奏效的一个概念,它要经得起时间的考验。家还原的是真实的生活,不但要符合屋主的生活习惯,也要与他们的经历、感情相匹配。”
进门第一眼,看到的就是亮堂的玄关,两扇大窗将光线很好地引进室内,经过香格里拉帘纱的过滤,温和地洒进来。这么好的采光当然不能被遮挡,于是换鞋凳和鞋柜便主动“低头”让道,只留下足够的空间放置屋主的常穿鞋。
女主人:“右边是工具书和他的专业书,《电路》、《信号与系统》这些,平时的话,他喜欢读非虚构类作品。我们基本上各种书都会读,但我会喜欢更偏理论、偏抽象的。有时候买书,会送些很好看的画,或者那些很好看的封面,我会把它们剪下来,粘在冰箱或者洞洞板上。“
客厅的布局十分灵活。平常沙发靠着书柜,宽敞便于行走;有朋友来,座椅和沙发可以面对面拜访,三五好友围坐,削弱主客之分。
女主人希望家里每个空间都是有互动的,在客厅里不止能闻到厨房传来的香味,也能看到做菜的人。与设计师沟通后,一致决定在这儿开扇窗。男主人不希望窗开的太大,一番拉扯之后,各退一步,最终呈现出现在的效果。后期还可在左侧粘贴软木板,装饰各种明信片、照片。
当初购房时,房屋的视野和采光也是屋主的考量因素之一。整面落地窗,苍葱绿意尽收眼底,仿佛置身森林一般。正是这一处美好的景致,促进屋主在此安家的意愿。屋主两人对功能性的要求不高,所以阳台区域并未规划储物区,而是简简单单地用来观赏、放松,日后也可用于运动健身、朋友聚会。小老虎玩偶已经跟着男屋主很多年了,依然保存完好。长凳是它的宝座,我们拜访时,它正乖乖地趴在上面。
男屋主希望家里温馨一点,具体而言就是“木头多一些”。所以餐边柜和餐桌都选择了颇具中古风的樱桃木,再搭配上屋主的各色物品,温暖质感油然而生。餐厅、厨房或许是最有烟火气的地方,这里浓缩了一个家的特质和气息。入住时间不长,但这一角显然已经烙上了屋主自己的印记:琼浆玉液酒,抵不过餐桌上的小油瓶;五谷不贵,却最能饱腹;经历无法复刻,却可以承载于物件上,越南、埃及模糊的印象,从千里之外搬进画框,最后陈列在餐边柜上。
屋主喜欢无吊柜的厨房设计,对功能性的要求并不高。所以我们只使用了一排地柜,释放出上部空间,更显通透。
“以前租房的时候,因为房东身高的关系,厨房台面只有80cm。我们俩的颈椎不好,每次做饭的时候,低着头很不舒服,所以装修之前,我们一致决定:‘嗯!台面一定要做高点儿!’然后,我们就去宜家试了一下高度,感觉90cm是最合适的,就跟设计师沟通,最后还是做到90cm。”






















