远洋国宾御府 134㎡ x 空间魔术师:实用主义者的张弛有序
空间魔术师:实用主义者的张弛有序
在繁忙的都市生活中,寻找一片宁静的天地,让家庭成为心灵的港湾。三口之家温馨而和睦。宝宝的到来让家中充满了欢声笑语,同时也给家居带来了新的挑战。女主人是一位热爱生活的人,喜欢把家打理得井井有条,让每一个角落都洋溢着温馨和美好。于是这次的设计重点落在了功能的优化与各空间储物的合理规划。
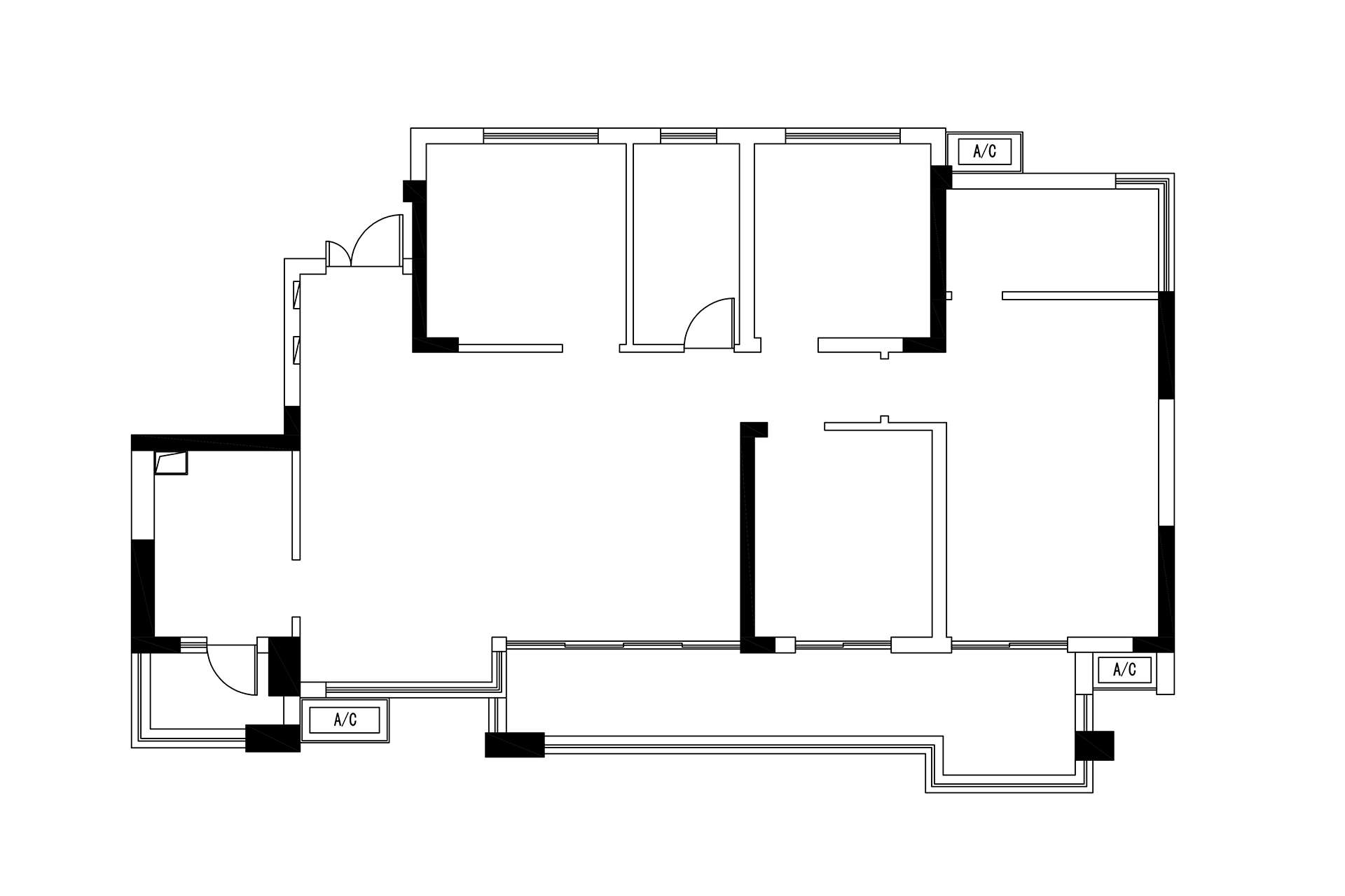
改造前:
❶ 原始套四的结构,能够满足屋主一家对功能区域的规划,但每个房间面积都较小
❷ 超长的休闲阳台提供大量采光面,但使用率较低
❸ 厨房空间较小,没有充裕的烹饪空间
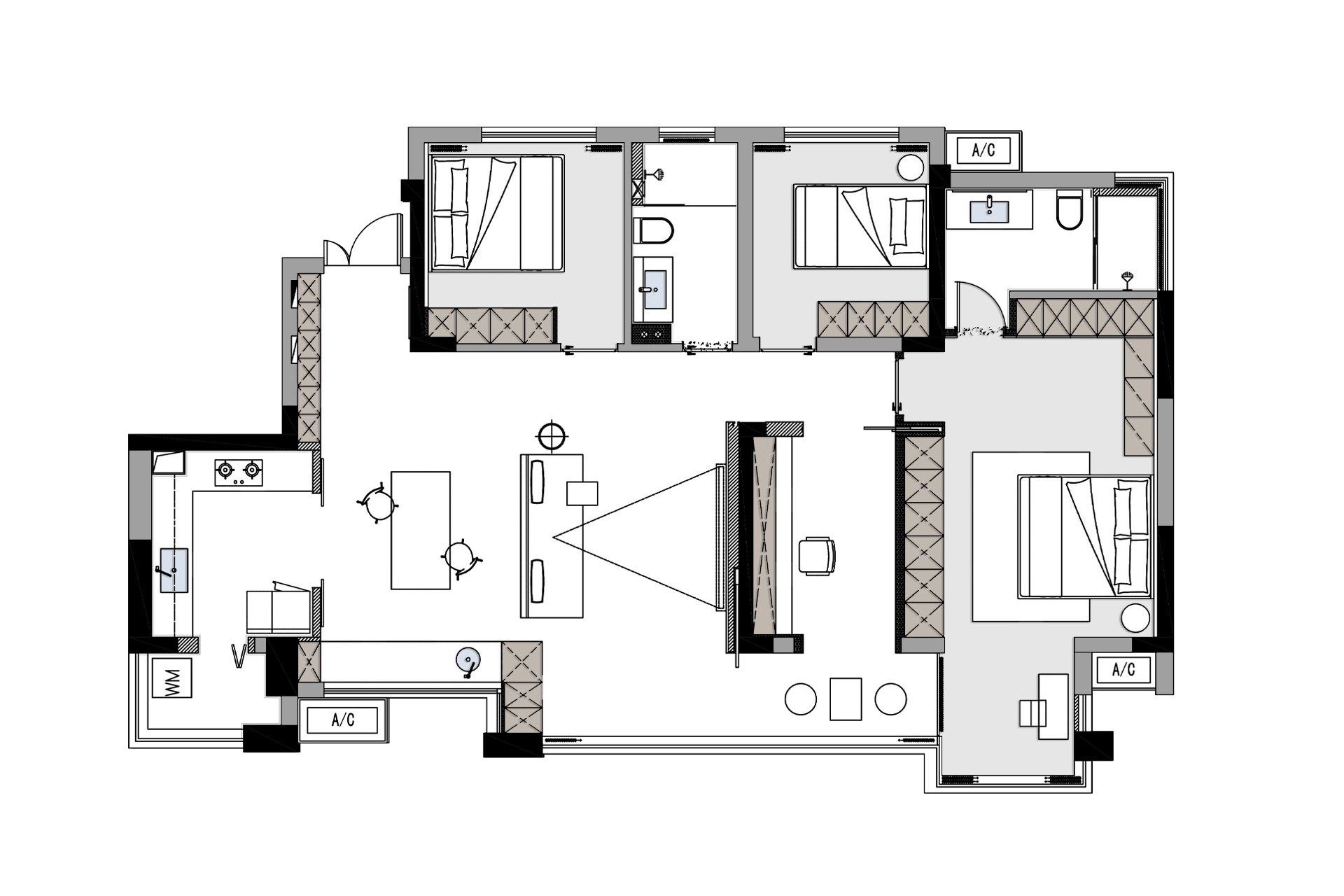
改造后:
❶ 餐厅窗户旁,安装了西橱柜+家政柜,对厨房收纳和操作进行功能补充
❷ 阳台封窗后扩入公共区域和主卧,增加两个区域的使用面积,获得舒适的生活尺寸
❸ 书房改造为可开合的灵活空间,使得客厅和书房形成洄游动线,空间之间的联系增加
❹ 压缩了部分书房空间,增加了主卧的储物量
玄关
玄关作为进入家居空间的第一道风景线,是我们每天都会频繁使用的地方。针对屋主一家未来十几年甚至更久的储物需求和使用功能,我们特别设计了一排大储物量的鞋柜。
鞋柜中间的原木色隔断,不仅增加了整体造型的美观度,更是为了满足屋主一家在使用上的便利。在安装时,我们进行了特殊的加固处理,增加了隔断的承重量,使其能够直接当做换鞋凳使用。每次回家,只需直接坐下,便可轻松换鞋,让入门体验更加舒适和便捷。
鞋柜对面安装了一面智能全身镜,可根据屋主的需求变化灯光的亮度,无论是需要在清晨清晰地看到自己的面容,还是在晚上需要足够的灯光来整理形象……在玄关设计中融入智能科技元素,不仅体现了现代风格的时尚感,更是将生活品质推向了新的高度。我们追求的不只是美观度,更是为屋主一家打造一个舒适、实用的生活空间。
餐厨
小巧而精致的厨房,大大限制了屋主的烹饪空间,于是精简了厨房的操作功能,L型的橱柜安装使得厨房储物空间得到了最大化的利用,同时也符合人体工程学原理,使得烹饪过程中的操作更加舒适和便捷。冰箱放置在独立一个角落,使得物品取用更加方便,完全符合“拿-备-洗-切-炒”的科学流程,让屋主在烹饪过程中更加得心应手。
我们在餐厅旁增加了西厨柜+家政柜,增加西厨柜和家政柜作为厨房的补充功能,使得整个家居空间的功能更加完善,同时也提高了空间的使用效率。预先规划的水位和可升降插座,让屋主可以方便地洗水果和准备茶水,这样的设计考虑到了生活的细节,让人感到非常贴心。嵌入的玻璃柜体内部规划了电路,屋主能够放置一些微波炉、饮水机等小型厨用电器,让使用更为方便快捷。这种设计既现代又实用,为家居生活带来了更多的便利。
屋主一家平时三人就餐,不过在聚会时,人数可能会大量增长,于是我们为餐厅选用了可变餐桌,餐桌完全展开后可以满足10人就餐。
客厅
为了让客厅成为一个舒适、温馨的起居空间,我们在项目中采取了一系列创新的设计手法。
客厅紧邻餐厅,这种布局使得两个区域能够相互渗透,增强了就餐和娱乐的互动性。同时,客厅位于家庭的多个动线交汇处,设计师巧妙地运用加厚电视墙,既避免了传统电视柜对动线的干扰。并且让客厅与书房之间能够安装一扇可隐形口袋门。
更值得一提的是,电视墙加厚屋主可以将游戏、电视设备隐藏在电视后面的空间,让客厅更具多元化功能。此外,电视架采用了可拉伸的支架,方便屋主根据需要调整位置,同时也方便日后的设备整理。
阳台
随着人们对生活品质的追求不断提高,越来越多的家庭开始注重家庭的清洁和整理。为了方便收纳和管理清洁设备及消耗品,家政柜规划逐渐成为了家庭中不可或缺的一部分。
阳台处家政柜与餐厅的西厨柜相连,不仅可以提供充足的收纳空间,还可以对清洁设备进行分类和整理,使家庭环境更加整洁和有序。同时,家政柜也可以作为家居设计的一部分,与整个家居风格相协调,增加了家居的美观性和实用性。
书房
在设计家居空间时,考虑到男主人在家有办公的需求以及未来宝贝上学后需要学习、写作业的地方,书房成为他们必不可少的空间。为了满足这一需求,我们为屋主设计了半开放式的书房,让空间既能够保持独立,又能够方便互动。
两扇隐藏在墙体里的口袋门,能够让书房在封闭与互通之间灵活切换。关闭口袋门,书房可以变为封闭的空间,以满足隐私需求。当书房开敞时,书房与客厅之间形成洄游动线,使得空间的互动性和联系性更强。
一体化书桌+书柜弱化了对空间尺寸的需求,定制桌面特别加深到700mm,满足男业主显示屏+笔记本同时使用的特殊需求,而且未来大人与宝贝可以一同办公、写作业。
主卧
我们向书房和主卫进行了压缩,以增加主卧的储物量。我们将书房的空间进行了压缩,通过精心设计,使得书房内的书柜、书桌和椅子等家具更加紧凑,从而减少了书房的占用面积。同时,我们还为主卧增加了储物空间,以满足屋主对于衣物、鞋子、被子等物品的收纳需求。
其次,我们将墙面、柜体以及主卫隐框门做成同色,使得整个空间看起来更加整洁、干净。
休闲阳台部分空间划分给主卧,用玻璃隔断阻隔,增加主卧空间的同时,也增加了阳台的延伸感,增设的窗帘也无需担忧主卧的隐私性。





















